就活・移住・転職の相談は、にいがたくらしごとセンター

にいがたで暮らす

購入

一戸建て

桂の空き家(能ー121)

情報提供日:-

物件詳細情報

青のアイコンは当該空き家物件 赤のアイコンは周辺お試し居住施設です。

所在地 糸魚川市桂
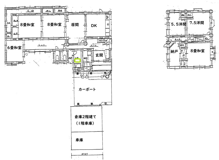
種類 一戸建て
間取り 5K以上
価格 550万円
築年月 1972年04月
空き家になった時期 令和8年1月
建物(占有)面積 149.27㎡
構造・規模 木造2階建て
残置物有無
補修要否 多少の補修が必要
最寄り公共交通機関と所要時間 越後ときめき鉄道 能生駅から約1,200m   

     
主な周辺施設 スーパーマーケットまで約1,700m
コンビニエンスストアまで約950m
総合病院まで約12,000m
能生ICまで約850m






おすすめポイント 能生の街中に近い静かな環境♪
カーポートと車庫があり、冬も快適に駐車できます!
備考 物件詳細は、糸魚川市空き家バンクをご覧ください。

関連情報 物件詳細ページ(糸魚川市空き家バンク)
ライフスタイル -

この物件へのお問合せ

空室を確認したい、物件を見たい、詳しい情報を知りたいなど、
この物件に関するお問合せは下記自治体(または委託団体)の担当窓口へお問合せください。

お問合せの際、物件名をお伝えください。
物件名 【糸魚川市】 桂の空き家(能ー121)
お問合せ先情報

株式会社平建設

TEL:025-566-4908

電話でのお問合せ

025-566-4908

新潟県へのU・Iターンに関しての
ご相談はこちらから

新潟県へのU・Iターンに関するワンストップ窓口

にいがた暮らし・
しごと支援センター

80

銀座オフィス

〒104-0061
東京都中央区銀座5-6-7
銀座・新潟情報館 THE NIIGATA 地下1階
※地下1階へは、建物1階横の通路を奥に進み、エレベーター又は階段をご利用ください。

TEL│03-6281-9256

MAIL|こちらから

開設時間|10:30 ~ 19:30

休業日|火曜日・祝日・年末年始

銀座・新潟情報館 THE NIIGATA

有楽町オフィス

〒100-0006
東京都千代田区有楽町2-10-1東京交通会館8F
公益社団法人ふるさと回帰・移住交流推進機構(ふるさと回帰支援センター・東京)内

TEL│090-1657-7263

MAIL|こちらから

開設時間|10:00 ~ 18:00

休業日|月曜日・祝日・お盆・年末年始

ページの先頭へ