就活・移住・転職の相談は、にいがたくらしごとセンター

にいがたで暮らす

購入

一戸建て

小見の空き家(能ー117)

情報提供日:-

物件詳細情報

青のアイコンは当該空き家物件 赤のアイコンは周辺お試し居住施設です。

所在地 糸魚川市小見
種類 一戸建て
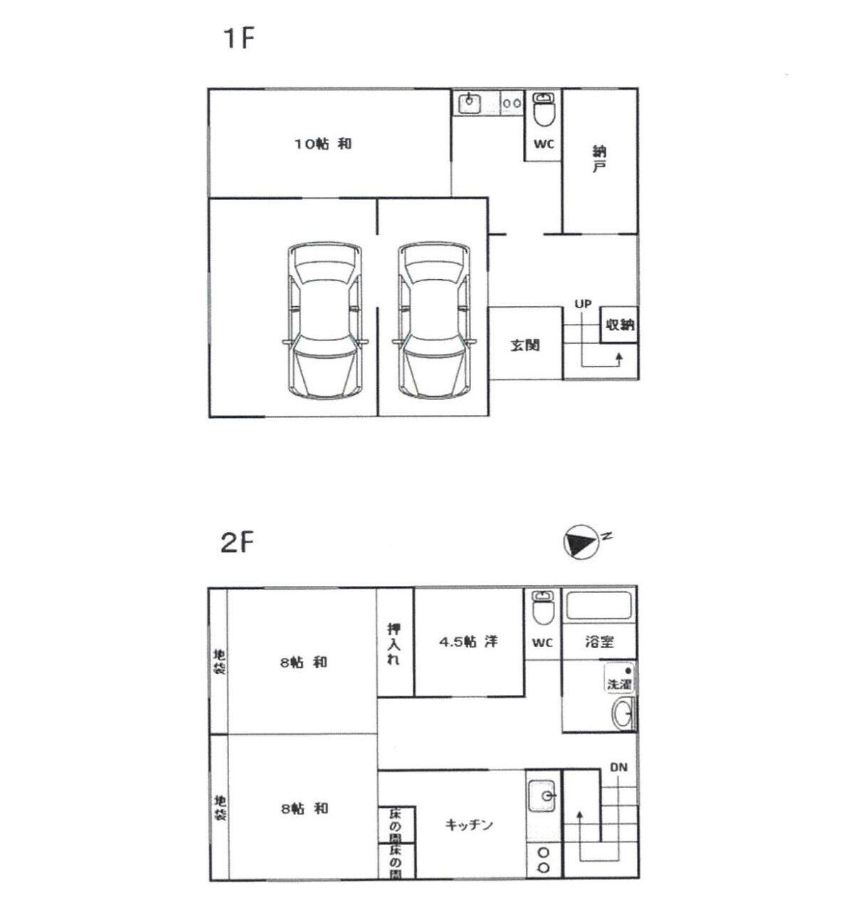
間取り 4DK
価格 750万円
築年月 1999年09月
空き家になった時期 令和年122月
建物(占有)面積 151.46㎡
構造・規模 木造2階建て
残置物有無
補修要否 補修不要
最寄り公共交通機関と所要時間 越後ときめき鉄道 能生駅から約2300m
    

     
主な周辺施設 スーパーマーケットまで約2,700m
コンビニエンスストアまで約2,000m
総合病院まで約14,000m




おすすめポイント コンパクトで住みやすい田舎暮らし物件です!
雪国に嬉しい車庫付き♪
備考 物件詳細は、糸魚川市空き家バンクをご覧ください。

関連情報 物件詳細ページ(糸魚川市空き家バンク)
ライフスタイル -

この物件へのお問合せ

空室を確認したい、物件を見たい、詳しい情報を知りたいなど、
この物件に関するお問合せは下記自治体(または委託団体)の担当窓口へお問合せください。

お問合せの際、物件名をお伝えください。
物件名 【糸魚川市】 小見の空き家(能ー117)
お問合せ先情報

株式会社 平建設

TEL:025-566-4098

電話でのお問合せ

025-562-1426

新潟県へのU・Iターンに関しての
ご相談はこちらから

新潟県へのU・Iターンに関するワンストップ窓口

にいがた暮らし・
しごと支援センター

80

銀座オフィス

〒104-0061
東京都中央区銀座5-6-7
銀座・新潟情報館 THE NIIGATA 地下1階
※地下1階へは、建物1階横の通路を奥に進み、エレベーター又は階段をご利用ください。

TEL│03-6281-9256

MAIL|こちらから

開設時間|10:30 ~ 19:30

休業日|火曜日・祝日・年末年始

銀座・新潟情報館 THE NIIGATA

有楽町オフィス

〒100-0006
東京都千代田区有楽町2-10-1東京交通会館8F
公益社団法人ふるさと回帰・移住交流推進機構(ふるさと回帰支援センター・東京)内

TEL│090-1657-7263

MAIL|こちらから

開設時間|10:00 ~ 18:00

休業日|月曜日・祝日・お盆・年末年始

ページの先頭へ